Leave a Message

Thank you for your message. We will be in touch with you shortly.

Explore Our Properties

Property Description

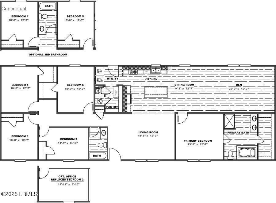
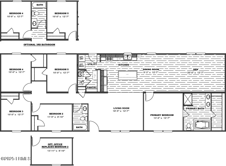
PROPOSED CONSTRUCTION - Available as Land & Home Package with NO HOA and on a spacious lot! This stunning 5 bed, 3 bath offers over 2,000 sq ft of modern living, perfectly situated on a peaceful 1.3-acre lot. Enjoy the open-concept layout featuring a spacious kitchen with a large island, coffee bar area, stainless steel appliances & pantry. The home is beautifully finished with two living spaces, his & her sinks in the primary bath, & a brick underlay around the skirt for a polished look. This property is minutes from Bluffton, Beaufort, and Hilton Head! Don't miss out on this rare opportunity to own land and a brand new home in a prime location. This home is to-be-built and there are several modifications to the floorplan available. Reach out to the listing agent to learn more about these options and schedule a walkthrough of the model home today!

Overview

Property Status
For Sale
Lot Size
1.3 Acres
MLS ID
192015
Property Type
Manufactured-Mobile
Year Built
2025

Features & Amenities

Total Area
2,001 Sq.Ft.
Architecture Styles
Ranch
Water Frontage
None
Water Source
Private
Roof
Composition
Parking
Gravel, Driveway
Heat Type
Electric, Central
Air Conditioning
Electric, Central Air
Appliances
Disposal, Elec/Oven/Range, Refrigerator
Sewer
Septic Tank
Substructure
Crawl
Security Features
S, m, o, k, e, /, H, e, a, t, D, e, t, e, c, t, o, r
Sales Price
$349,000
Zoning
Residential

Downloads

246 Proctor Street

Schedule a Tour

We would love to help you see this beautiful home! As a full-service brokerage, we can help you tour. Please submit an offer, and answer questions about the buying process.

Enter a valid email

Thank you

for your interest in 246 Proctor Street, Ridgeland, SC 29936

back to page
246 Proctor Street
Navigate

Mortgage Calculator

Estimate your monthly mortgage payment, including the principal and interest, property taxes, and HOA. Adjust the values to generate a more accurate rate.
$0,000 Your Payment 20 15 65
$0,000 Your Payment

I'm Interested In

246 Proctor Street

Follow Us On Instagram